• Standard vinyl siding colour

  • Large walk in closet, large double entry closet and 1/2 bathroom

  • Wedgewood 3/4 glass front door with sidelights, sliding patio door, single hung windows with 3 1/2” wide trim and grilles

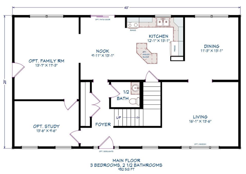
SH-009 28x48 Traditional 2 Story

3 Bedroom , 2.5 Bathroom

Features:

  • On site covered porch and additional coach light

  • Kitchen island, optional family room and study